Omschrijving
ZIJ makelaardij presenteert deze mooie hoekwoning aan de Beukenlaan 122 te Grootebroek.
Een fijne hoekwoning in een rustige en brede straat met mooie erker. Deze netjes onderhouden en instapklare woning is uitgebouwd, verrassend ruim en ligt op een ideale plek dichtbij winkels, scholen en openbaar vervoer. Een heerlijke basis!
Indeling van de woning
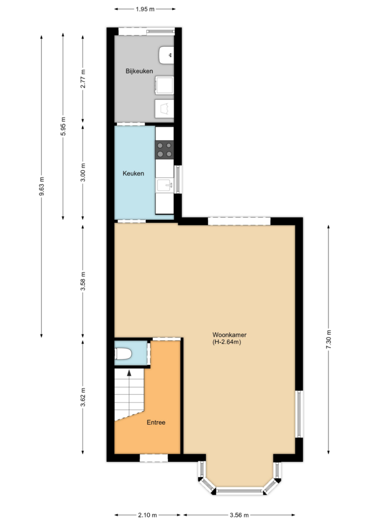
Begane grond:
Via de entree kom je in de hal met meterkast, toilet, garderobe en trapopgang naar de eerste verdieping. De woonkamer is heerlijk licht en heeft aan de voorzijde een speelse erker die zorgt voor extra sfeer. Aan de achterzijde is ruimte voor een grote eettafel waar je gezellig kunt tafelen met familie en vrienden.
De keuken ligt in de aanbouw en is praktisch ingericht met diverse inbouwapparatuur zoals een gaskookplaat, koelkast, combi oven en afzuigkap. Aansluitend vind je de bijkeuken met aansluitingen voor de wasmachine en droger, prettig uit het zicht en extra functioneel.
Buiten:
Als hoekwoning profiteer je van extra ruimte en licht. De tuin is een fijne plek om buiten te zitten en is voorzien van een handige berging voor de fietsen. Door de ligging op het westen kan je hier tot in de late uurtjes van de zon genieten. Ook is de tuin via een achterom bereikbaar.
Eerste verdieping:
Op de eerste verdieping zijn drie goed bemeten slaapkamers, stuk voor stuk prettig in te delen. De kunststof kozijnen zijn voorzien van rolluiken en horren. De badkamer is verzorgd en voorzien van een douche, wastafelmeubel en handdoekradiator.
Tweede verdieping:
De tweede verdieping biedt een vierde slaapkamer met dakkapel, wat zorgt voor extra licht en ruimte. Daarnaast is er praktische opbergruimte en de opstelplaats van de cv installatie, een Intergas uit 2019.
Omgeving van de woning:
Beukenlaan 122 ligt op een centrale en geliefde locatie in Grootebroek. Winkelcentrum Stede Broec, scholen, openbaar vervoer en diverse sport en recreatievoorzieningen bevinden zich op korte afstand. De straat is rustig en breed, met alle dagelijkse voorzieningen binnen handbereik.
Kom sfeer proeven!
Ben je op zoek naar een fijne hoekwoning waar je zó in kunt, op een plek die alles heeft wat je nodig hebt? Dan nodigen wij je van harte uit om Beukenlaan 122 zelf te komen ervaren. Plan een bezichtiging in of kom langs tijdens het open huis, ZIJ makelaardij heet je van harte welkom!
Algemeen
- Vraagprijs € 365.000 k.k.
- Status Beschikbaar
- Aanvaarding In overleg
Energie
- Energieklasse B
- Isolatie Dakisolatie, Muurisolatie, Vloerisolatie
- Verwarming Cv ketel
- Warm water Geiser eigendom
Bouw
- Soort woonhuis Eengezinswoning
- Type Hoekwoning
- Bouwjaar 1972
- Soort bouw Bestaande bouw
Buitenruimte
- Type buitenruimte(s) Achtertuin, Voortuin
- Hoofdtuin locatie West
- Hoofdtuin breedte 6.2 meter
- Hoofdtuin lengte 12 meter
- Hoofdtuin achterom Nee
Oppervlakte en inhoud
- Woonoppervlakte 115m2
- Inhoud 392m3
- Perceeloppervlakte 162m2
Indeling
- Aantal verdiepingen 3
- Aantal kamers 5
- Slaapkamers 4
- Aantal badkamers 1










































































