Omschrijving
ZIJ presenteert deze unieke hoekwoning met maar liefst 5 slaapkamers aan de Hugo de Grootsingel 70, Bovenkarspel.
Welkom in deze prachtige, tot in de puntjes verzorgde woning! Een huis waar alles klopt: sfeer, ruimte en een fantastische ligging. De afgelopen jaren is deze woning volledig gemoderniseerd en dat is te zien. Van een luxe keuken en een vernieuwde badkamer tot een nieuwe pvc-vloer met vloerverwarming – alles is hier met oog voor detail aangepakt.
Indeling:
Stap binnen in de royale woonkamer, waar licht en ruimte de hoofdrol spelen. Dankzij de vloerverwarming en de smaakvolle visgraat pvc-vloer voelt het hier meteen als thuis. Ook is er een handige ruimte voor een thuiskantoor, speelplek of gewoon lekker als extra woonruimte. Er zijn dubbele openslaande deuren naar de achtertuin toe.
De Häcker designkeuken is een droom voor kookliefhebbers: hoogwaardige apparatuur, volop bergruimte en een moderne uitstraling. Achter de keuken bevindt zich een handige bijkeuken met extra opbergruimte en de was- en droogopstelling.
Op de eerste verdieping vind je drie ruime slaapkamers, waarvan twee groot genoeg voor een tweepersoonsbed. De badkamer is modern en praktisch ingericht met een royale inloopdouche (Grohe rainshower), een stijlvol badkamermeubel en een toilet.
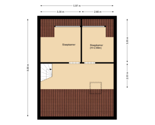
De tweede verdieping verrast met nog eens twee grote slaapkamers én een heerlijke chillruimte. Perfect als speelkamer, thuiskantoor of extra leefruimte. De kunststof dakkapel over de volledige breedte van de woning zorgt hier voor extra licht en ruimte. Ideaal voor (grote) gezinnen!
Buiten:
De tuin is een heerlijke plek om te ontspannen. Dankzij de ligging rondom de woning geniet je hier van veel privacy en groen. De achtertuin is voorzien van een grote houten berging, een vaste kast voor tuingereedschap en een sfeervolle overkapping. Of je nu van de zon wilt genieten of liever in de schaduw zit: er is altijd een fijne plek te vinden! Door de ligging aan het einde van een doodlopende straat heb je volop privacy.
Waarom je hier wilt wonen:
– Volledig gemoderniseerd en instapklaar
– Maar liefst vijf slaapkamers
– Prachtige keuken met Miele apparatuur
– Vloerverwarming en nieuwe pvc-vloer
– Zonnepanelen
– Nieuwe cv-installatie (CW5, 2021)
– Groot perceel met veel privacy
– Dicht bij voorzieningen, scholen en uitvalswegen
– Bijkeuken en veel bergruimte
Deze woning is een unieke kans voor wie op zoek is naar ruimte, comfort en een heerlijke leefomgeving. Benieuwd? We laten je het huis graag zien!
Algemeen
- Vraagprijs € 395.000 k.k.
- Status Verkocht
- Aanvaarding In overleg
Energie
- Energieklasse B
- Isolatie Dakisolatie, Muurisolatie, Dubbel glas, Hr glas
- Verwarming Cv ketel
- Warm water Cv ketel
Bouw
- Soort woonhuis Eengezinswoning
- Type Hoekwoning
- Bouwjaar 1970
- Soort bouw Bestaande bouw
Buitenruimte
- Type buitenruimte(s) Achtertuin, Voortuin, Zijtuin
- Hoofdtuin locatie Noord
- Hoofdtuin breedte 9 meter
- Hoofdtuin lengte 10 meter
- Hoofdtuin achterom Nee
Oppervlakte en inhoud
- Woonoppervlakte 137m2
- Inhoud 450m3
- Perceeloppervlakte 240m2
Indeling
- Aantal verdiepingen 3
- Aantal kamers 6
- Slaapkamers 5
- Aantal badkamers 1
























































































