Omschrijving
ZIJ presenteert deze vrijstaande woning aan de Kerkweg 59 te Venhuizen. Thuis in het groen, met uitzicht om stil van te worden!
Aan de geliefde Kerkweg in het karakteristieke Venhuizen staat deze vrijstaande jaren ’30 woning op je te wachten. Met een perceel van maar liefst 1.090 m², een schitterende ligging aan de rand van het dorp én vrij uitzicht aan zowel de voor- als achterzijde is dit een plek waar je écht tot rust komt. ’s Ochtends zie je de zon opkomen boven de velden achter je tuin, ’s avonds geniet je vanuit de woonkamer van een kleurrijke zonsondergang. Hier woon je met ruimte, vrijheid én volop potentie om het huis volledig naar je eigen smaak te maken.
Indeling van de woning
Begane grond:
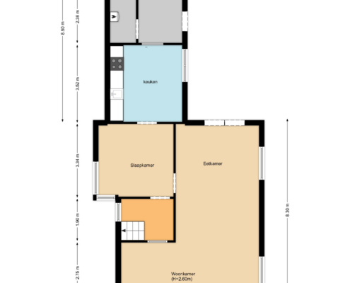
Je betreedt de woning aan de achterzijde, handig én praktisch. Op het ruime pad is voldoende plek om meerdere auto’s te parkeren. Je komt binnen in de bijkeuken, waar zich het toilet, de garderobe en de wasruimte bevinden.
Vanuit hier loop je door naar de keuken, die recent is vernieuwd en is voorzien van diverse inbouwapparatuur. Aansluitend bevindt zich een fijne ruimte die perfect is als kantoor, hobbyruimte of juist als speelplek voor de kinderen.
De eetkamer aan de achterzijde heeft prachtig glas-in-lood en openslaande deuren naar de tuin: een heerlijke plek voor lange diners, borrels of een spelletje aan tafel.
Aan de voorzijde van het huis bevindt zich de lichte woonkamer, met panoramisch uitzicht over de weilanden waar in het voorjaar pioenen bloeien en in de verte de koeien grazen. Hier zit je eerste rang bij de ondergaande zon.
Buiten:
De tuin rondom de woning is een waar paradijs voor liefhebbers van groen en buitenleven. Met diverse (fruit)bomen, bloemen, sierstruiken en een royaal grasveld is het hier in elk seizoen genieten. Er zijn meerdere fijne zitjes, perfect om te lezen, zonnen of gewoon even stil te zijn.
De grote schuur is een enorme plus: voorzien van een verdiepingsvloer en ideaal voor opslag, hobby’s of om je caravan, camper of boot binnen te stallen. De ruimte hier is echt uniek. Op de schuur liggen ook nog eens zonnepanelen, ideaal om je energiekosten wat te kunnen drukken.
Eerste verdieping:
De bovenverdieping telt drie slaapkamers, allen met uitzicht op het omliggende landschap. De badkamer is eenvoudig, maar functioneel en biedt voldoende ruimte om te moderniseren naar eigen wensen.
Tweede verdieping:
Via een vlizotrap bereik je de vliering, perfect als extra opbergruimte.
Maak het eigen, maak het thuis.
Kerkweg 59 biedt je een zeldzame combinatie: vrijheid, uitzicht, ruimte én het karakter van de jaren ’30. De woning vraagt om modernisering, maar is daarmee juist de perfecte kans om alles naar je eigen hand te zetten. Zie jij jezelf hier al wonen?
Plan dan snel een bezichtiging in – wij laten je dit bijzondere plekje in Venhuizen graag zien!
Algemeen
- Vraagprijs € 595.000 k.k.
- Status Verkocht
- Aanvaarding In overleg
Energie
- Energieklasse C
- Isolatie Dakisolatie, Muurisolatie, Gedeeltelijk dubbel glas
- Verwarming Cv ketel
- Warm water Cv ketel
Bouw
- Soort woonhuis Eengezinswoning
- Type Vrijstaande woning
- Bouwjaar 1930
- Soort bouw Bestaande bouw
Buitenruimte
- Type buitenruimte(s) Achtertuin, Voortuin, Zijtuin
- Hoofdtuin locatie Oost
- Hoofdtuin breedte 21 meter
- Hoofdtuin lengte 28 meter
- Hoofdtuin achterom Nee
Oppervlakte en inhoud
- Woonoppervlakte 128m2
- Overige inpandige ruimte 3m2
- Inhoud 457m3
- Perceeloppervlakte 1090m2
Indeling
- Aantal verdiepingen 2
- Aantal kamers 4
- Slaapkamers 3
- Aantal badkamers 1
















































































