Omschrijving
ZIJ presenteert deze vrijstaande woning aan de Koningsweg 42 in Westerland op een bijzonder perceel van maar liefst 1490 m2. Met vrij uitzicht zowel aan de voor- als achterzijde, een enorme tuin met volwassen fruitbomen en de Waddenzee op loopafstand is dit een plek waar buitenleven en rust samenkomen. Een heerlijke woning voor wie graag ruimte en natuur om zich heen heeft, met de mogelijkheid om deze naar eigen smaak verder in te richten.
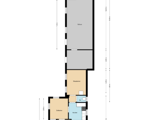
Indeling:
Begane grond
De entree bevindt zich aan de voorzijde, met meterkast en de trapopgang naar boven. Aan de linkerzijde ligt de woonkamer met erker, waar je uitkijkt over de uitgestrekte landerijen. Aansluitend vind je de eetkamer, met zicht op de grote achtertuin. De keuken is eenvoudig en voorzien van wat inbouwapparatuur. Aan de achterzijde bevindt zich het toilet en een slaapkamer die tevens gebruikt kan worden als thuiswerkplek of speelruimte. In deze ruimte is ook plek voor de wasmachine, droger en de cv-installatie (Intergas, 2023).
Buiten
Het perceel rondom de woning is een ware verrassing. Er is ruimte voor meerdere auto’s op eigen terrein en de tuin biedt volop mogelijkheden om te genieten van de natuur. De volwassen fruitbomen zorgen niet alleen voor schaduw en sfeer, maar ook voor een oogst in het seizoen. Ook is er een zeer ruime schuur met alle ruimte om heerlijk in te hobbyen, je spullen in op te slaan of om nog naar eigen wens te verbouwen.
Eerste verdieping
Deze verdieping is recent volledig gerenoveerd. Hier bevinden zich twee slaapkamers van goede afmeting. De slaapkamer aan de achterzijde heeft een vide, een speelse toevoeging die gebruikt kan worden als extra opbergruimte of als knusse plek voor de kinderen. De badkamer is eveneens vernieuwd en uitgevoerd met een inloopdouche, toilet, wastafel en handdoekradiator.
Vlizo
Via een vlizotrap bereik je de zolder met voldoende opbergruimte.
Omgeving
De woning ligt op korte loopafstand van de Waddenzee, een uniek natuurgebied dat nooit hetzelfde is. De omgeving van Westerland is geliefd vanwege de rust, de ruimte en het karakteristieke landschap. Hier woon je buiten, maar met voorzieningen en uitvalswegen op korte afstand.
Enthousiast
Wil je wonen op een plek waar elke dag voelt als een beetje vakantie, met ruimte om je heen en de Waddenzee vlakbij? Plan dan snel een bezichtiging, wij laten je dit bijzondere huis met plezier zien.
Algemeen
- Vraagprijs € 450.000 k.k.
- Status Verkocht
- Aanvaarding In overleg
Energie
- Energieklasse C
- Isolatie Dakisolatie, Muurisolatie, Vloerisolatie, Dubbel glas, Volledig geisoleerd, Hr glas
- Verwarming Cv ketel
- Warm water Cv ketel
Bouw
- Soort woonhuis Eengezinswoning
- Type Vrijstaande woning
- Bouwjaar 1939
- Soort bouw Bestaande bouw
Buitenruimte
- Type buitenruimte(s) Achtertuin, Voortuin, Zijtuin
- Hoofdtuin locatie Noordwest
- Hoofdtuin breedte 14 meter
- Hoofdtuin lengte 100 meter
- Hoofdtuin achterom Nee
Oppervlakte en inhoud
- Woonoppervlakte 92m2
- Overige inpandige ruimte 45m2
- Inhoud 464m3
- Perceeloppervlakte 1490m2
Indeling
- Aantal verdiepingen 2
- Aantal kamers 4
- Slaapkamers 3
- Aantal badkamers 1




































































