Omschrijving
ZIJ presenteert deze ruime hoekwoning met garage! Een woning met vier slaapkamers, een nieuwe keuken, badkamer en lekker veel woonruimte. Plan jouw bezichtiging in op een van de kijkdagen of kom langs tijdens het open huis.
Gelegen in een kindvriendelijke buurt met een grote speeltuin aan de voorzijde. De basisschool is bereikbaar op loopafstand en in de zomer ben je binnen no-time bij de strandjes aan het Markermeer. Venhuizen heeft een supermarkt, diverse basisscholen, kinderopvang, diverse winkels en een rijk aanbod aan sporten en verenigingen.
Indeling van de woning:
De woning is gebouwd in 1998 en voorzien van energielabel B.
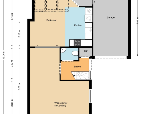
Via het eigen pad waar plek is voor 1 grote auto of een eventuele kleinere tweede auto kom je uit bij de voordeur. In de hal bevinden zich de trapopgang, meterkast en recent vernieuwde toilet.
De woonkamer ligt aan de voorzijde van de woning en heeft lekker veel daglicht. Er ligt een houten vloer welke je eventueel nog naar smaak kan aanpassen. Het plafond is strak gestuukt en heeft een mooie Amsterdamse plint langs de zijkanten.
Via de ensuite deuren kom je uit in de zeer lichte keuken. Door de uitbouw met glazen dak komt er namelijk extra veel daglicht binnen. Er is veel ruimte voor een grote eettafel waardoor je echt gezellig kan zitten in de vernieuwde keuken. Deze is voorzien van divers luxe inbouwapparatuur. Een inductiekookplaat, koelkast, combimagnetron en vaatwasser, alles is aanwezig! De keuken heeft een frisse lichtblauwe kleur.
Tussen de woonkeuken en garage zit de bijkeuken. Er is hier plaats voor de wasmachine, droger en een eventuele extra koel/vriescombinatie.
Eerste verdieping:
Op de eerste verdieping zijn drie slaapkamers aanwezig. Alle slaapkamers hebben een mooi formaat en een speelse indeling. De badkamer is echt een pareltje! Recent volledig vernieuwd en voorzien van een toilet, inloopdouche met zitje en een moderne wastafel.
Tweede verdieping/zolder:
Overloop met veel opbergruimte en opstelling van de C.V. Op de overloop is zoveel ruimte dat je hier ook nog eventueel een speelruimte voor kinderen of gamekamer van kan maken. Op de zolder is ook de vierde slaapkamer aanwezig. Een grote slaapkamer met genoeg ruimte voor een tweepersoonsbed en een grote kast.
Buiten:
Ruime tuin met plek voor een leuke loungeset of om een veranda te plaatsen. De tuin is gelegen op het oosten en bereikbaar via de steeg aan de achterzijde.
Garage:
Het fijne aan deze hoekwoning is dat deze een ruime garage heeft. Genoeg plek voor alle fietsen, het gereedschap of een hobbyruimte.
Algemeen
- Vraagprijs € 375.000 k.k.
- Status Verkocht
- Aanvaarding In overleg
Energie
- Energieklasse B
- Isolatie Dakisolatie, Muurisolatie, Vloerisolatie, Volledig geisoleerd, Hr glas
- Verwarming Cv ketel
- Warm water Cv ketel
Bouw
- Soort woonhuis Eengezinswoning
- Type Hoekwoning
- Bouwjaar 1998
- Soort bouw Bestaande bouw
Buitenruimte
- Type buitenruimte(s) Achtertuin, Voortuin
- Hoofdtuin locatie Oost
- Hoofdtuin breedte 8 meter
- Hoofdtuin lengte 10 meter
- Hoofdtuin achterom Nee
Oppervlakte en inhoud
- Woonoppervlakte 127m2
- Overige inpandige ruimte 17m2
- Inhoud 483m3
- Perceeloppervlakte 210m2
Indeling
- Aantal verdiepingen 3
- Aantal kamers 5
- Slaapkamers 4
- Aantal badkamers 1






















































































