Omschrijving
ZIJ presenteert deze ruime tussenwoning aan de Wethouder Grootstraat 12 in Venhuizen.
Een woning met veel ruimte, een fijne ligging en volop mogelijkheden om er je eigen draai aan te geven. Met een zonnige achtertuin, garagebox en vier eigen zonnepanelen ligt hier een solide basis om een toekomstbestendig thuis te creëren. Bovendien geniet je van de fijne ligging van deze woning.
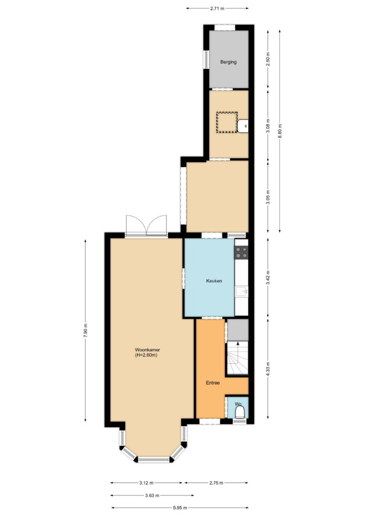
Begane grond
Via de verzorgde voortuin stap je de woning binnen. In de hal vind je de meterkast, trapopgang, toilet en een handige trapkast. De keuken ligt aan de rechterzijde en is voorzien van diverse inbouwapparatuur. De woonkamer aan de voorzijde heeft een erker met glas-in-loodramen waardoor het licht prachtig binnenvalt. Aan de achterzijde bevindt zich het eetgedeelte met uitzicht op de tuin. Vanuit hier loop je door naar de verschillende aanbouwen: eerst een tuinkamer die ook prima als kantoor kan dienen, daarna een wasruimte en tenslotte een berging voor extra opslag.
Buiten
De achtertuin is diep, gelegen op het zuiden en bereikbaar via een achterom. Achter de woning bevindt zich een garagebox, ideaal voor de auto, fietsen of extra bergruimte.
Eerste verdieping
Op de eerste verdieping zijn twee slaapkamers, waarvan één zich uitstrekt over de volledige lengte van de woning. Deze kamer kan desgewenst worden opgesplitst in twee ruime slaapkamers. De badkamer is voorzien van een nieuwe inloopdouche, toilet en wastafel en heeft een vleugje vintage in de uitstraling.
Tweede verdieping
Op de zolderverdieping is een derde slaapkamer met dakraam, extra opbergruimte en plek voor de CV-installatie uit 2012.
De omgeving
De woning ligt aan een straat met een speeltuintje direct aan de voorzijde. Op korte afstand vind je een basisschool en kinderopvang, ideaal voor gezinnen. Venhuizen zelf is een gezellig dorp met diverse voorzieningen, sportclubs en scholen. Daarbij ben je zo op de uitvalswegen richting Hoorn of Enkhuizen.
Zie jij jezelf al wonen in deze woning vol mogelijkheden? Kom dan langs en ervaar zelf de ruimte, de sfeer en de ligging. Maak snel een afspraak voor een bezichtiging of bezoek het open huis.
Algemeen
- Vraagprijs € 315.000 k.k.
- Status Verkocht
- Aanvaarding In overleg
Energie
- Energieklasse C
- Isolatie Dakisolatie, Muurisolatie, Vloerisolatie, Volledig geisoleerd, Grotendeels dubbelglas
- Verwarming Cv ketel
- Warm water Cv ketel
Bouw
- Soort woonhuis Eengezinswoning
- Type Tussenwoning
- Bouwjaar 1971
- Soort bouw Bestaande bouw
Buitenruimte
- Type buitenruimte(s) Achtertuin, Voortuin
- Hoofdtuin locatie Zuid
- Hoofdtuin breedte 5 meter
- Hoofdtuin lengte 10 meter
- Hoofdtuin achterom Nee
Oppervlakte en inhoud
- Woonoppervlakte 118m2
- Overige inpandige ruimte 20m2
- Inhoud 501m3
- Perceeloppervlakte 182m2
Indeling
- Aantal verdiepingen 3
- Aantal kamers 5
- Slaapkamers 3
- Aantal badkamers 1






































































